Kamera Slider
August 2013
Ich habe vor kurzer Zeit angefangen Zeitrafferaufnahmen mit meiner DSLR zu machen und wollte jetzt einen Kamera-Slider haben, da mit diesem noch spannendere Bewegungen möglich sind. Vor allem geht es dabei um den sogenannten Parallax-Effekt, bei dem sich die Objekte im Vordergrund gegenüber denen im Hintergrund verschieben.
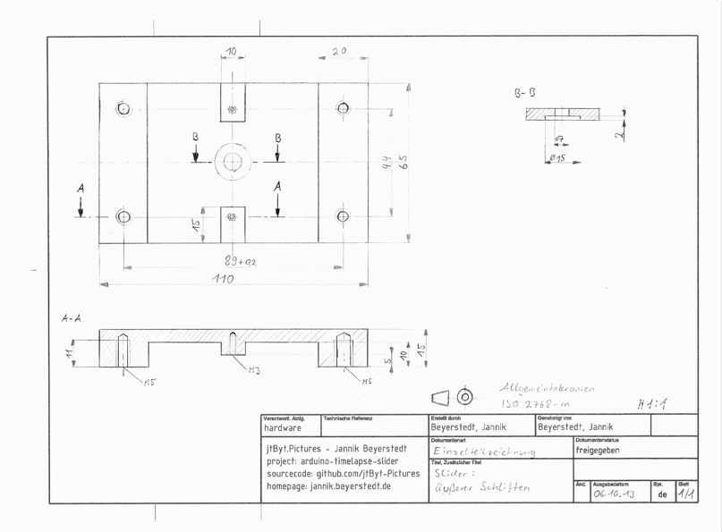
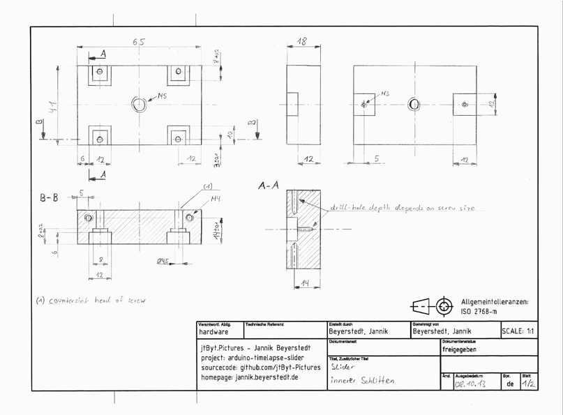
Also habe ich mir ein paar Sachen bestellt und mir da was zusammengebastelt. Dabei hatte ich das Glück, dass ich im Grundpraktikum für das Studium ein paar Teile aus Aluminium fräsen durfte.
Für die Ansteuerung verwende ich eine Arduino Uno und einen Schrittmotor-Treiber. Die Eingaben der Parameter erfolgt einfach über zwei 7-Segment-Anzeigen, sowie drei Taster.
Hier sind ein paar Zeichnungen und Bilder, sowie der Link zum Code auf Github zu finden.
Github:
Alle Dateien zu diesem Projekt sind auf Github.com popup:yes zu finden. Du kannst dich auch gerne daran beteiligen, den Code nutzen, verändern, dich nur inspirieren lassen - was auch immer.
kleines Changelog:
Für aktuelle Informationen bitte auf Github schauen:
github.com/jbeyerstedt/Arduino-timelapse-slider popup:yes
November 2014
Version 2.1 ist erschienen!
Neuer Code und neue Funktionen.













